Construction d’une nouvelle résidence étudiante à Toulon
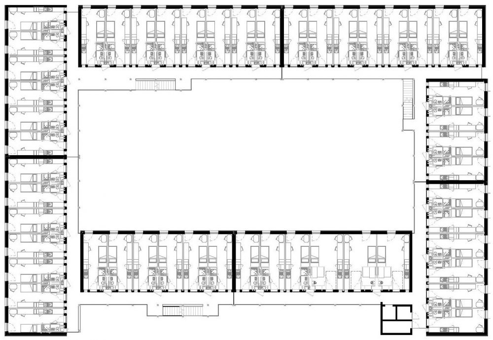
Le site du projet se trouve dans un quartier de Toulon de moyen-haute densité caractérisé par une architecture de reconstruction d’après-guerre sur un axe routier de haute fréquentation. Les « barres » d’habitation est la typologie la plus répandue ; elle produit un espace au sol complétement ouvert, exposé aux agressions de la rue, un avant/arrière dénué d’intimité, avatar de la Charte d’Athènes. La forme de l’immeuble à patio s’est imposée d’emblée pour le projet. Capable de générer un espace protégé (îlot de fraîcheur) convivial et méditerranéen, il est également en mesure de proposer des logements tous traversant et confortables en toutes saisons, conformément à l’objectif premier du CROUS.
Chaque aile du bâtiment donne sur une coursive dotée de balcons ponctuels, d’escaliers ouverts et d’une végétation généreuse en coeur d’ilot : le patio est un ilot de fraîcheur dans lequel pousse un jardin qui peut également grimper verticalement par les coursives. Les façades extérieures reprennent une esthétique minérale et régulière en harmonie avec le contexte urbain voisin tandis que les façades intérieures se décomposent dans un esprit organique, décontracté et naturel.
Seule la façade sur rue exprime par le biais des coursives et des jardins verticaux ce qui se passe à l’intérieur du patio de la résidence.